Added to Cart

The RHDG Diamond Series steel roof hatch features bring you the most value in a standard roof hatch

Roof hatches provide convenient access to the rooftop from the inside of commercial or industrial buildings. The Diamond Series Roof Hatch is designed for safe and easy roof access with higher insulation values to reduce building energy costs.

  • Easier to install - The embossed counterflashing design – Diamond Grip™ – quickly secures the roof membrane and backing rod without tools or sharp edges
  • Reduce building energy costs with an R-6 insulation value in both the curb and cover
  • Durable, infrared-reective, white powder coat finish minimizes heat buildup
  • New spring design makes cover easier to operate for compliance with OSHA standards for one-handed operation while on a ladder
  • 5-year warranty

Optional Safety Railing and Safety Posts available.

Brand

Model

RHDG-5WT

Size

48" x 48"

Access Type

Ladder

Curb Material

14 gauge galvannealed steel

Cover Material

14 gauge with 22 gauge galvannealed steel liner

Finishes

White textured powder coat

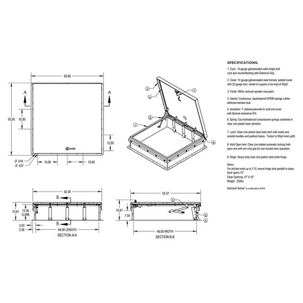
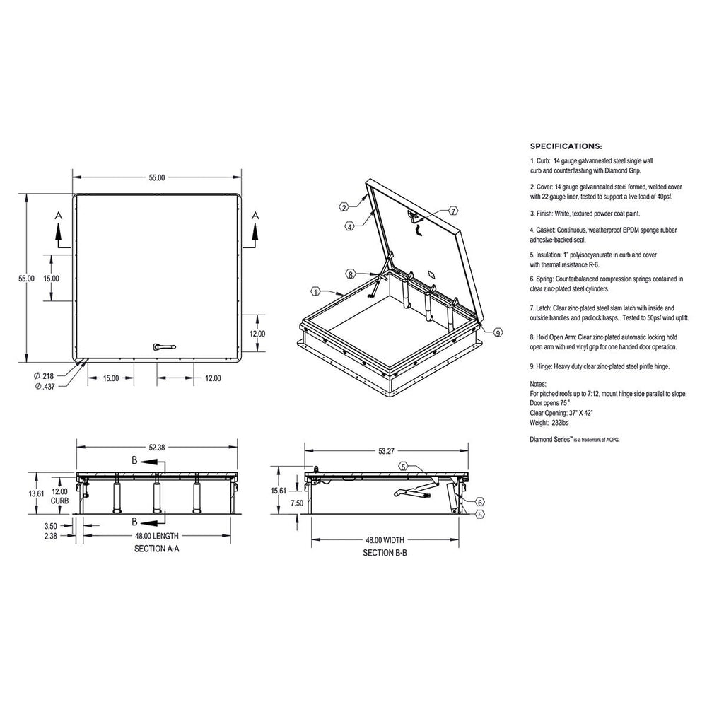
Curb Construction

Single wall curb and counterflashing with Diamond Grip to secure roof membrane without tools

Cover Construction

Formed and welded with liner, tested to support a live load of 40 psf.

Gasket

Continuous, weatherproof EPDM sponge rubber adhesive-backed seal

Insulation

1” polyisocyanurate in curb and cover with R-6 thermal resistance

Spring

Counterbalanced compression springs contained in clear zinc-plated steel cylinders

Latch

Clear zinc-plated steel slam latch with inside and outside handles and padlock hasps. Tested to 50psf wind uplift

Hold-Open Arm

Clear zinc-plated automatic locking hold-open arm with red vinyl grip for one-handed door operation

Hinge

Heavy duty clear zinc-plated steel pintle hinge

Weight

232 lbs.

RHDG-5WT 48" x 48" Diamond Series Steel Roof Hatch, Ladder Access
JL Industries RHDG-5WT 48" x 48" Diamond Series Steel Roof Hatch, Ladder Access